The Ras Al-Khair region is an industrial area currently underdevelopment. Industries in the area include an aluminium smelter, ammonia plant and desalination plant.
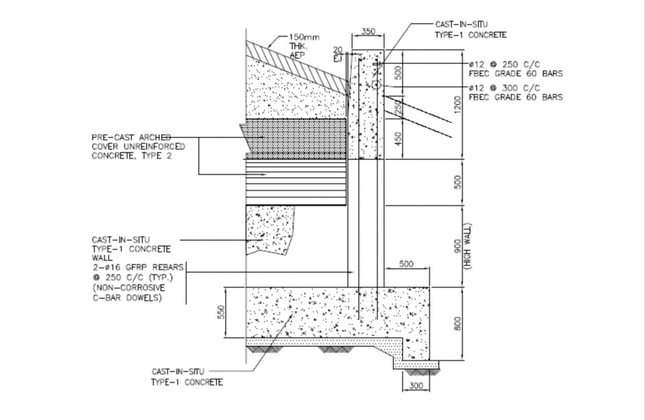
The construction of drainage arched culvert as part of the Jubail Site development used Mateenbar™ (16mm) reinforcement.
GFRP rebar, the solution to corrosive factors including chemicals
Built from the sand up, all elements that can corrode are present during the construction and the life-cycle of the culvert. With steel rebar corrosion being the leading cause of concrete deterioration a higher standard of rebar was required that would provide longevity to the structure. Mateenbar™ provided the best concrete reinforcement option, extending asset life by removing the risk of corrosion caused by high levels of exposure to chemicals, water and sand.
With a long design life cycle and zero maintenance requirements, Mateenbar™ GFRP rebar offers the best whole-of-life savings for the culvert structure.
Mateenbar™ is an approved construction material for the Royal Commission for Jubail & Yanbu.




